POINT
今回、紹介するのは神奈川県横浜市神奈川区にある横浜ハイタウンの団地リノベーション済み物件となります。
近隣には、雨の日でも遊べる子どもログハウスがある神大寺中央公園など子育てファミリーに嬉しい環境となっています。

今回のお部屋は、落ち着きのあるナチュラルテイストを意識した空間。
家具&照明付きです。

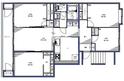
LDKとリビングは、可動式扉にして分けて使うことも開け放って使うこともできるようになっています。
床材には、さわやかな印象のテンダーオークを採用しています。



扉を閉めれば個室のように使えるリビング横の洋室には、ウォークインクローゼットを造作。
クローゼットの出入り口にはフレキシブルに使えるようロールスクリーン仕様にしています。


キッチンカウンターには、北欧の質の高い木材パネルである『ソルミ』を採用。
フィンランド語で”指”という意味である『ソルミ』は、北欧では伝統的なデザインとなっており上質な空間を演出してくれます。

キッチンは食洗機付き仕様、キッチンスペースは作業のしやすい広々さを確保しました。
床材には、お手入れの楽なマーブル調のフロアタイルを採用しています。


廊下側には便利に使える稼働棚を設置。
来客時など棚が見えないように隠したい時に使えるようにロールスクリーンも取り付け済みです。

玄関には、収納力のある大きめのシューズクローゼットを。
足元確認がしやすいよう、シューズクローゼット下にはダウンライトも設置してあります。


北側にある二つの洋室は、収納を充実させたシンプルベーシック仕上げに。


水回りの壁紙には温かみのあるグレージュのアクセントクロス、床材はお手入れの楽なモルタル柄のフロアタイルを採用。
洗面台は、収納ミラーで機能的に整理して使えるように。
洗濯機置き場上部には便利に使える稼動棚を設置してあります。
トイレは温水洗浄便座仕様、浴室には24時間換気機能付きの浴室暖房乾燥機を導入で梅雨時期や花粉・黄砂対策での室内干しの際に便利に使えます。



今回の物件は、最寄駅の片倉町駅までは平坦な道のりで徒歩約12分。バス便も便利で充実しており、近くのバス停から何本もバスが出ているので、東横線反町駅など横浜駅近辺にもすぐに出ることができます。
新横浜駅と横浜駅の中間にあたるエリアとなっており、片倉町駅から新横浜駅までは約4分、横浜駅までは約7分と交通アクセスが良好です。
こちらの団地リノベーション済み物件、気になる方はお気軽にお問合せを!皆様のお越しをお待ちしております。
